• 十个最污的软件免费看,所有免费的av网站app,特别黄的免费直播软件,特别污的软件免费

    优秀店面

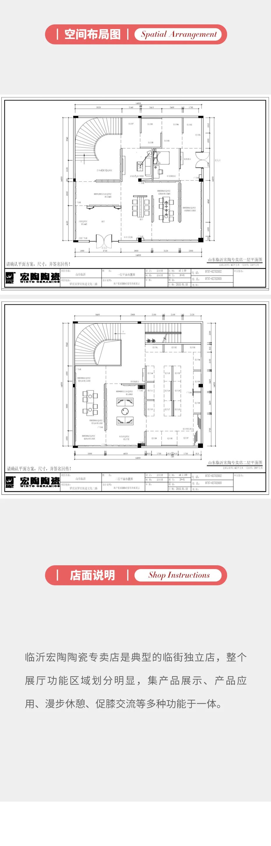
    装点家 添精彩 | 优秀店面第四十七期

    时间:2023.05.03 作者: 浏览次数:

      分享:
    网站地图